project banner

location

Dubai South

completion

Q1 2028

Crafted for Connection, Designed for Growth

BOLD Developer presents The Collective, a collection of 94 exclusive fully-furnished one and two-bedroom apartments located in the heart of Dubai South. With architectural and interior design vision by Bold Bespoke Design, it is a serene residential community for the family living with a genuine sense of home.

key features

Key Features

Discover the Difference

icon

Strategic Position
in Dubai South

icon

Luxury, Fully-Furnished
Apartments

icon

Estimated Rental
Yields of 8,5% - 9,5%

icon

Low District
Supply with under 3,000 Apartments in the Pipeline

icon

50/50 Payment
Plan with 20% Booking Fee

icon

World-Class
Amenities

icon

Investor-Friendly
Regulations

icon

Entry Price
10% – 15% below Competing Projects

icon

Interiors by
Bold Bespoke Design

Concept

Interiors by Bold Bespoke Design

Bringing back inclusivity & a holistic lifestyle as the new living experience.

Concept

Architecture by Design Haus Medy

A play of contrast between dynamic urban living and mindful green living.

Concept

Family-friendly Community

Leisure, productivity & living; all provided at your doorstep, creating personalized lifestyle experiences.

Amenities

Amenities That Elevate Living

amenity image

Swimming Pool

Rooftop Swimming Pool With Panoramic Views

amenity image

Curated Garden Terraces

Landscaped Terraces and Community Gardens

amenity image

Rooftop Bar

Refined rooftop bar designed for elevated experiences

amenity image

Gym and Wellness Studio

Premium fitness and wellness space designed for well-being

amenity image

Outdoor Fitness Zone

An elevated outdoor fitness zone for refined active living

amenity image

Multi Purpose Court

A premium multi-purpose court for elevated recreation

amenity image

Open-Air Cinema

Exclusive open-air cinema for a curated movie experience

amenity image

Outdoor BBQ and Dining Area

Premium outdoor space for meals and gatherings

amenity image

Children’s Play Area and Family Leisure Zones

Premium family zones designed for fun and relaxation

amenity image

Residents' Lobby with the Concierge Service

Refined lobby experience with personalized resident assistance

amenity image

Tranquil Relaxation Areas

Exclusive serenity zones for mindful living

1 Bedroom
B
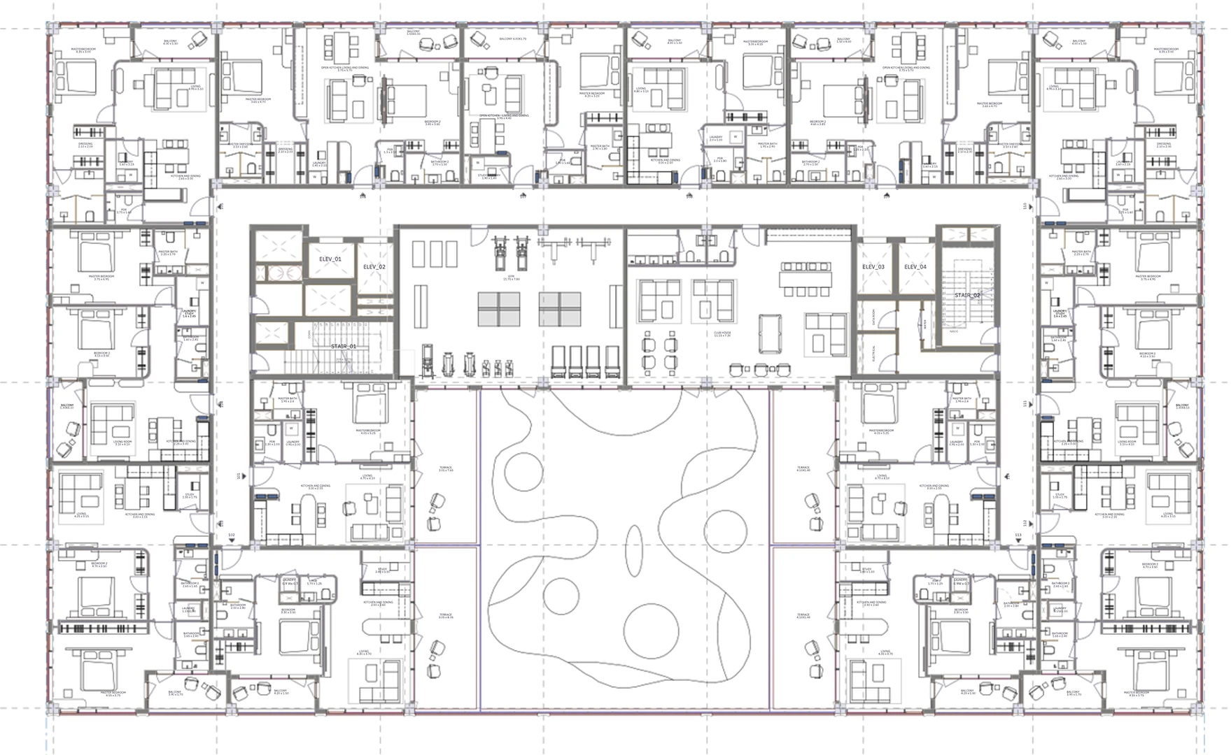
2 Bedroom The Collective Layout Rooftop layout

Location

Positioned for Possibility

Let’s Find
Your Perfect Property

Fill out the form below and our team will get in touch to you as soon as possible.

FILL AS AGENT
FILL AS CLIENT